Loading... Loading...

RS Architecture + Design Studio

You Dream. We design. Together we build the future!

Urban House Beta

THREE STOREY SINGLE FAMILY URBAN HOUSE

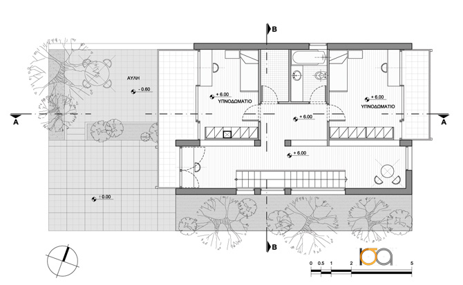
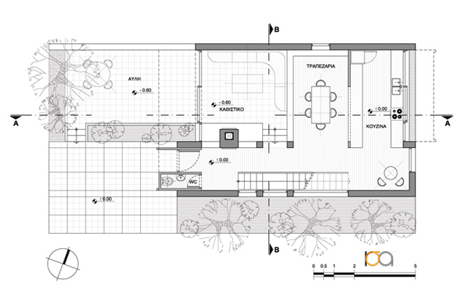
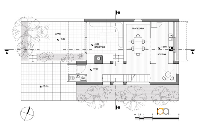
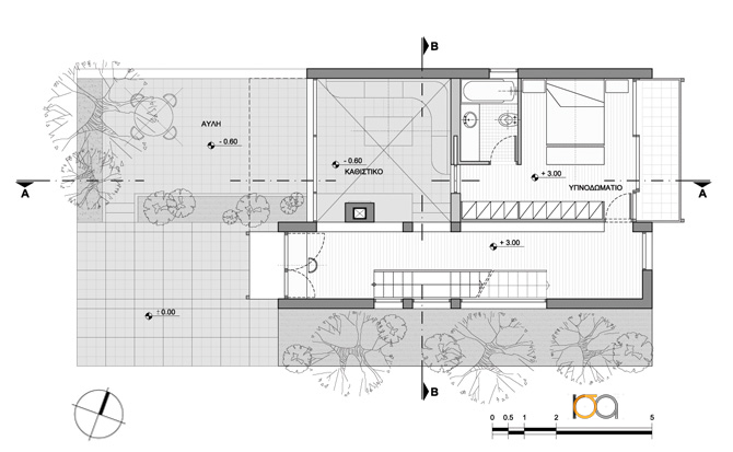
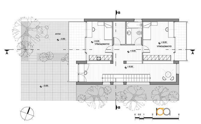
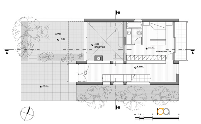
Single family urban house with three floors communicating via an inner staircase, placed at the street side, filtering the public views, amplifying the privacy of the house. The ground floor has a double height living room, a dining room, an open kitchen and a WC at the side. The living room is connected directly to the courtyard through double height glass storefront. The first floor has the master bedroom with the master bathroom, as well as an office area with view to the open living room of the ground floor. The second floor has two bedrooms with a common bathroom and a family playroom. All bedrooms have individual private balconies exploiting all the different views of the site.

There is also a basement with all the secondary uses (mechanical, heat, storage, laundry room etc).

The project is for sale including the complete study of architectural and interior design to fit your requirements.

enjoyed it? Share it

Facebook

Twitter

Google+

LinkedIn

Pinterest